s2itrs@gmail.com
Akademika Jovana Surutke 9
Pozovite nas:
+387 66 992 999
Početna
O nama
Lokacija
Naselje Ada
Nova Varoš
Kontakt
Ponuda stanova
Lokacija - Naselje Ada
≪ Prvi sprat
Drugi sprat
Treći sprat ≫
≪
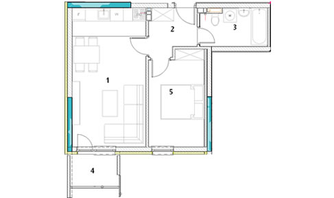
Drugi sprat
≫
Stan 8 -
48,93 m
2
PRODANO
Stan 9 -
48,17 m
2
PRODANO
Stan 10 -
69,54 m
2
PRODANO
Stan 11 -
47,87 m
2
PRODANO
Stan 12 -
85,41 m
2
PRODANO
Stan 13 -
78,29 m
2
PRODANO
Stan 14 -
44,58 m
2
PRODANO